Dein neues Zuhause in Leipzig | 2- bis 5-Zimmer-Wohnungen

Dein neues Zuhause in Leipzig | 2- bis 5-Zimmer-Wohnungen

Beschreibung

!! BITTE GEBEN SIE BEI ANFRAGEN IHRE TELEFONNUMMER MIT AN !!

Die 25 lichtdurchfluteten Wohnungen, mit Größen zwischen 59 und 145 Quadratmetern, bieten jedem ein passendes Zuhause!

Die 2- bis 5-Zimmer-Wohnungen bieten dank ihrer optimalen Raumaufteilung vielfältige Nutzungsmöglichkeiten. In den offenen Wohn- und Küchenbereichen sorgen die großen Fenster für viel Licht und schaffen ein großzügiges Raumgefühl..

Alle Wohn- und Flurbereiche sind mit glatten, weißen Wänden und hochwertigem Parkettboden ausgestattet. Eine Fußbodenheizung sorgt im Winter für Behaglichkeit, während sie im Sommer für angenehme Kühlung sorgt.

Hervorzuheben ist die ausgezeichnete Energieeffizienz (A+), ebenso wie die vierfach verglasten Fenster.

Die Bäder und WCs sind mit großformatigen Fliesen, edlen Armaturen sowie Duschtrennwänden, Handtuchheizkörpern und beleuchteten Spiegeln ausgestattet.

Alle Einheiten sind bequem mit dem Aufzug erreichbar.

PKWs finden einen wettergeschützten Stellplatz in der hauseigenen Tiefgarage.

Ein Innenhof lädt zum Verweilen und Entspannen ein und fungiert als Treffpunkt für die Nachbarschaft.

Wohnungen

Objekt-Nr.StatusEtageZimmerWohnflächeKaltmieteGrundriss
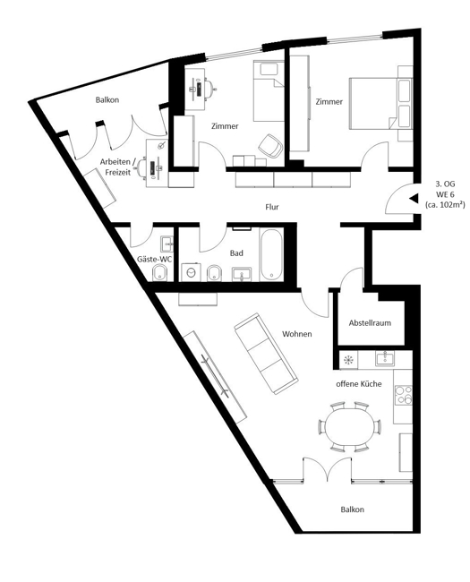
OFFEN33102 m²1.504,50 €Grundriss
OFFEN34117 m²1.696,50 €Grundriss
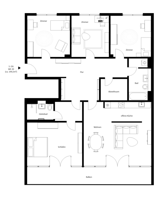
OFFEN35145 m²2.023,00 €Grundriss
OFFENDG3,598 m²1.519,00 €Grundriss
OFFEN23,5102 m²1.326,00 €

Ausstattung

  • Neubau
  • Erstbezug
  • 2 Häuser
  • 25 Wohneinheiten
  • 2 bis 5 Zimmer
  • 59 bis 145 Quadratmeter
  • Praktisch geschnittene Grundrisse
  • Balkone
  • Offene Küchen
  • Große Fensterfronten
  • Moderne Bäder mit Dusche oder Badewanne
  • Duschtrennwände, Handtuchheizkörper und beleuchtete Spiegel in den Bädern
  • Fußbodenheizung
  • Hervorragende Energieeffizienz (A+)
  • Fenster: 4-fach Verglasung
  • Hochwertiger Parkettboden
  • Waschmaschinenanschluß in jeder Wohnung
  • Teilweise Hauswirtschaftsräume
  • Teilweise Abstellräume
  • Netzwerkanschlüsse in allen Zimmern
  • Personenaufzüge in allen Häusern
  • 16 Tiefgaragenstellplätze
  • Keller
  • Innenhof zur gemeinsamen Nutzung

Downloads

Lage

Östlich der pulsierenden Leipziger Innenstadt erstreckt sich der Stadtteil Sellerhausen-Stünz, der sich durch seine vergleichsweise grüne Umgebung auszeichnet.

Hier, inmitten einer harmonischen Kulisse aus Natur und Urbanität, lassen sich alle Alltagsbesorgungen mühelos erledigen: Von Kindertagesstätten über Schulen bis hin zu einer Vielzahl von Arztpraxen und gastronomischen Einrichtungen bietet Sellerhausen-Stünz eine breite Palette an Annehmlichkeiten, die den Lebenskomfort seiner Bewohner bereichern. Doch nicht nur das – auch diverse Einkaufsmöglichkeiten tragen dazu bei, dass das Viertel ein Ort des Wohlfühlens ist.

Die lebendige Eisenbahnstraße, mit ihrem bunten Treiben und ihren zahlreichen Vorzügen, liegt ebenfalls in greifbarer Nähe.

Abseits des Trubels lädt der Stünzer Park mit seinen idyllischen Kleingartenanlagen zum Verweilen und Entdecken ein. Ein besonderes Juwel inmitten dieser grünen Oase ist die im 19. Jahrhundert erbaute und unter Denkmalschutz stehende Emmauskirche, die mit ihrer beeindruckenden Architektur und ihrer geschichtsträchtigen Atmosphäre Besucherinnen und Besucher gleichermaßen fasziniert.

Dank des gut ausgebauten Netzwerks aus Bus, Straßenbahn und S-Bahn sowie der hervorragenden Anbindung an die Bundesstraßen B 6 und B 87 ist Sellerhausen-Stünz bestens mit der Leipziger Innenstadt und dem umliegenden Umland verbunden, was eine unkomplizierte Erreichbarkeit gewährleistet und die Attraktivität des Viertels zusätzlich unterstreicht.

Häufig gestellte Fragen

Voraussetzungen für eine erfolgreiche Anmietung

  • Mietbeginn ist ab sofort möglich
  • die Mindestmietdauer beträgt 24 Monate
  • das Haushaltsnettoeinkommen sollte mindestens das 2,5-fache der monatlichen Warmmiete betragen
  • der Einsatz eines Bürgen ist möglich
  • die Übernahme der Miete durch das Jobcenter ist ausgeschlossen
  • Einreichung der Schufa-Auskünfte aller Vertragspartner
  • Einreichung der letzten drei Gehaltsnachweise aller Vertragspartner

Gibt es eine Mindestmietdauer?

Die Mindestmietdauer beträgt 24 Monate. Das Mietverhältnis ist erstmalig zum Ablauf des Zeitraums von 24 Monaten nach Beginn des Mietverhältnisses mit der gesetzlichen Kündigungsfrist ordentlich kündbar. Von dem Verzicht bleibt das Recht der Parteien zur außerordentlichen Kündigung aus wichtigem Grund und zur außerordentlichen Kündigung mit gesetzlicher Frist unberührt.

Wie hoch ist die Kaution und entstehen weitere einmalige Kosten?

Die Kaution beträgt drei Nettokaltmieten (die Nettokaltmiete nebst Nebenkosten sind im Mietvertrag ausgewiesen). Weitere Kosten wie beispielsweise Vermittlungsgebühren fallen nicht an.

Welche Optionen stehen zur Zahlung der Kaution zur Verfügung?

Die Kaution kann in einer oder drei Raten gezahlt werden. Das entsprechende Kautionskonto ist im Mietvertrag angegeben.

Sind Pkw-Stellplätze vorhanden?

Es entstehen insgesamt 16 Pkw-Tiefgaragenstellplätze zur Verfügung. Diese können monatlich für 80,00 € angemietet werden.

Sind E-Lademöglichkeiten vorhanden?

Nein E-Lademöglichkeiten stehen nicht zur Verfügung.

Gibt es Kellerräume zu den Wohneinheiten?

Jeder Wohneinheit ist ein Kellerraum zugeordnet.

Wer ist Telefon-/ Internet und TV-Anbieter?

Das Objekt wird von Vodafone erschlossen.

Wo befinden sich Abstellmöglichkeiten für Waschmaschine und Trockner?

Die Abstellmöglichkeiten befinden sich in den Badezimmern oder auch in den Abstellräumen der jeweiligen Wohnung.

Ist Tierhaltung gestattet?

Grundsätzlich ist Tierhaltung erlaubt. Allerdings bedarf dies einer Zustimmung durch die Hausverwaltung bzw. den Eigentümer.

Wer ist mein Ansprechpartner?

Für die Vermietung der Wohneinheiten ist die accept-immobilien GmbH zuständig. Sowohl die Unterzeichnung der Mietverträge als auch die Übergabe werden über die Hausverwaltung geregelt. Während der gesamten Mietzeit ist die Hausverwaltung Ihr erster Ansprechpartner. Die Kontaktdaten werden Ihnen bei Vertragsabschluss mitgeteilt.

Ihr zertifizierter Immobilienpartner

Wir freuen uns über Ihre Anfrage!

Es gilt unsere Datenschutzerklärung.
André Honert
André Honert

Folge uns auf Social Media