Ihr neues Zuhause – Modernes Wohnen an der Weißen Elster
Am traditionsreichen Mühlenstandort an der Weißen Elster entstand 1882 die F. M. Weber Papier- & Pappenfabrik Wehlitz. Schon ein Jahr später nahm dort eine Dampfmaschine der Görlitzer Maschinenbauanstalt ihren Betrieb auf. Das markante Klinkerbau-Ensemble prägt bis heute das Bild des Ortes und steht für die industrielle Entwicklung der Region. Heute erfährt das Gelände einen Wandel – mit neuen Ideen, kreativen Projekten und dem Erhalt historischer Industriearchitektur.
Mit der aufwendig sanierten Papierfabrik in Schkeuditz entsteht hier ein außergewöhnliches Wohnensemble, das historischen Charakter mit modernem Komfort verbindet – ruhig gelegen, direkt am Ufer der Weißen Elster.
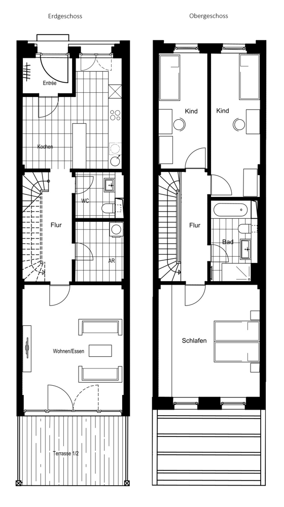
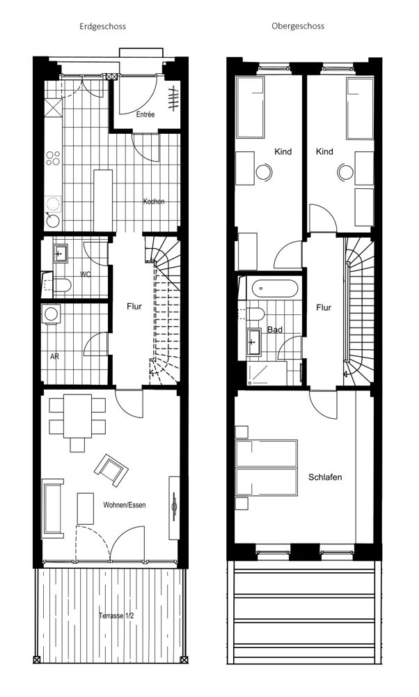
Im Rahmen der umfassenden Sanierung wurden historische Gebäude wie das ehemalige Turbinenhaus und das Verwaltungsgebäude sorgfältig instandgesetzt und durch einen modernen Neubau ergänzt – darunter auch eine großzügige Tiefgarage. So entstanden insgesamt 139 hochwertige Mietwohnungen, verteilt auf sieben aneinander gereihte Gebäudeteile sowie eine freistehende Villa.
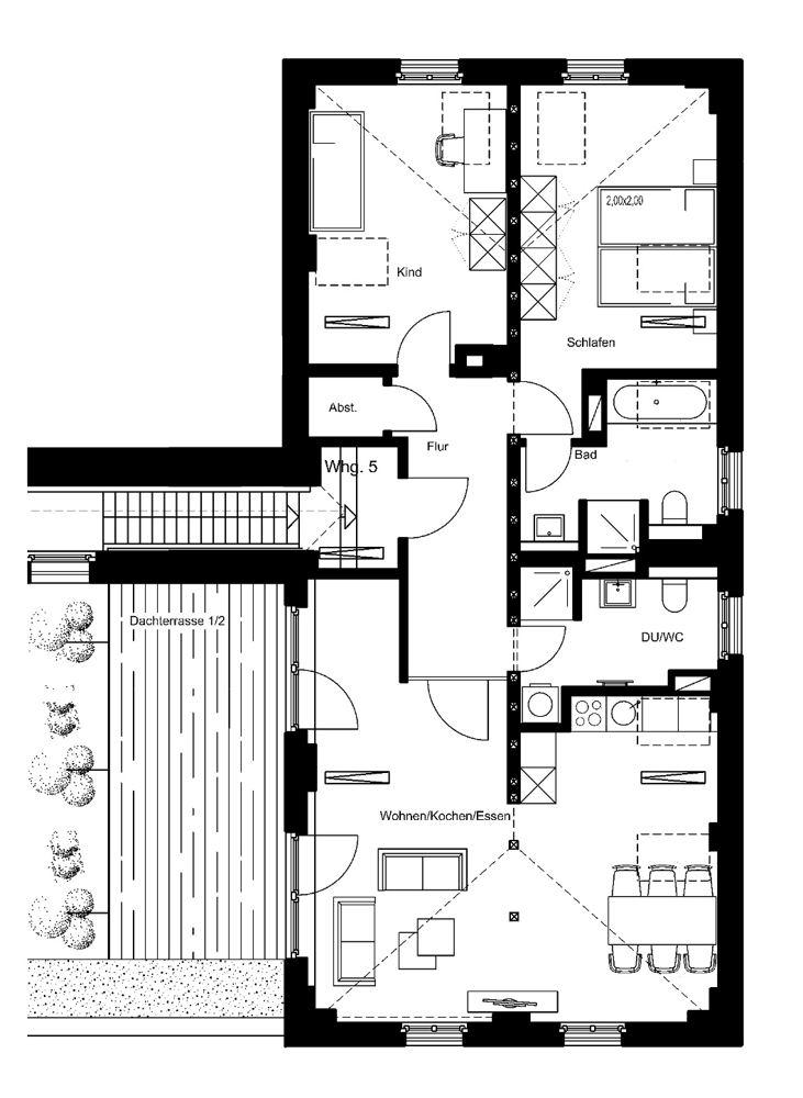
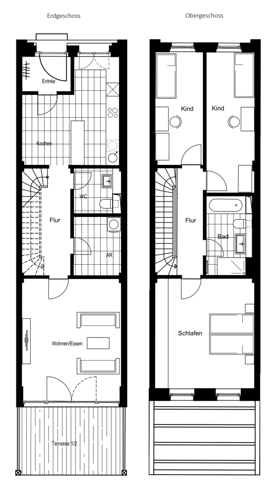
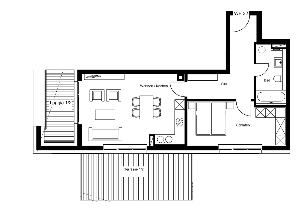
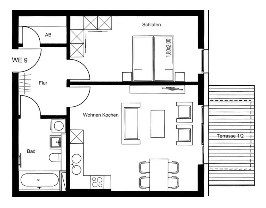
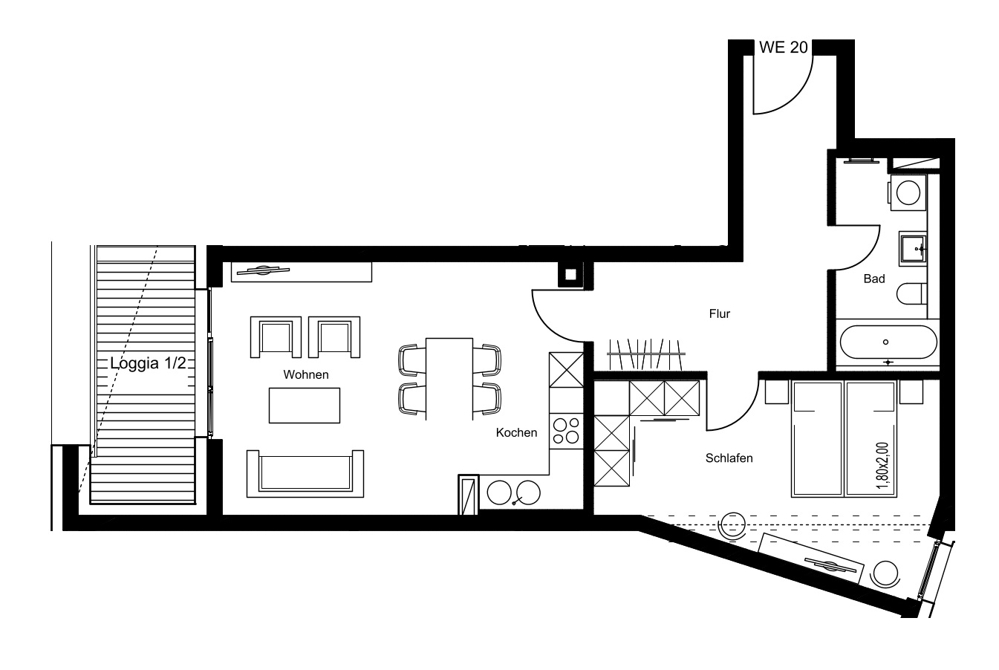
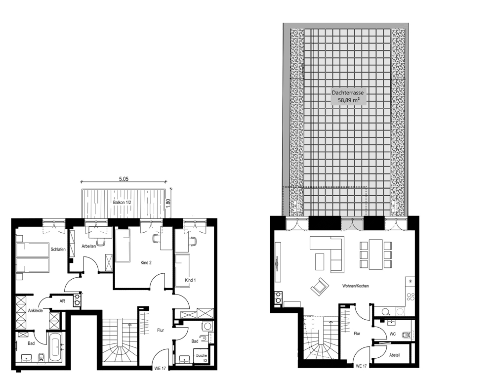
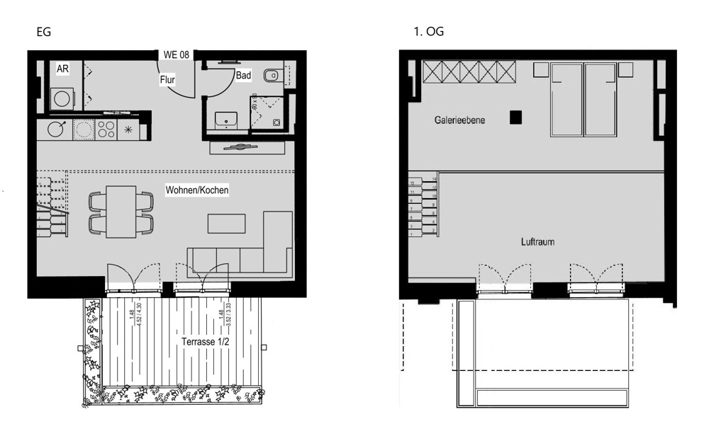
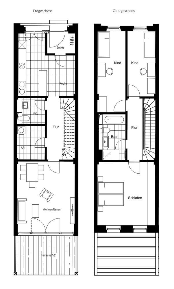
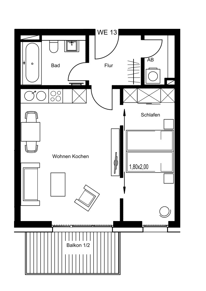
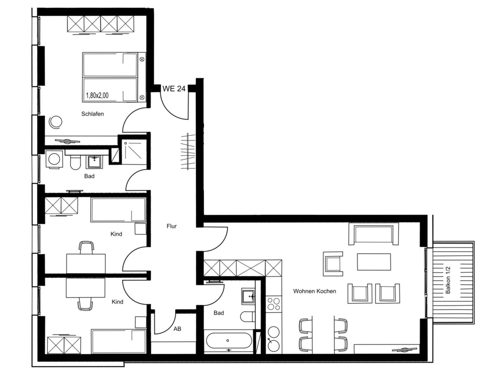
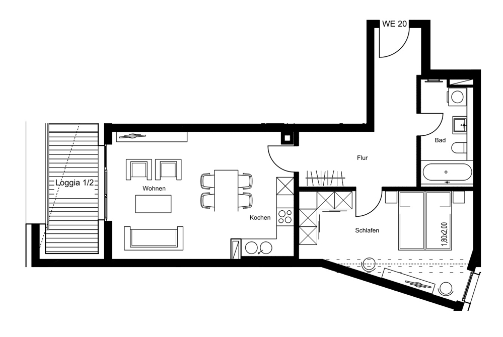
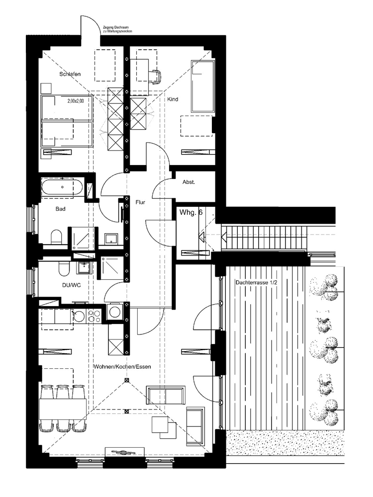
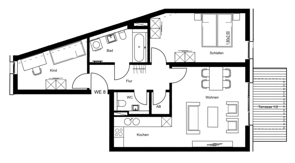
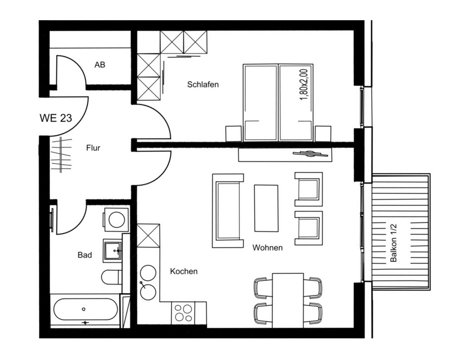
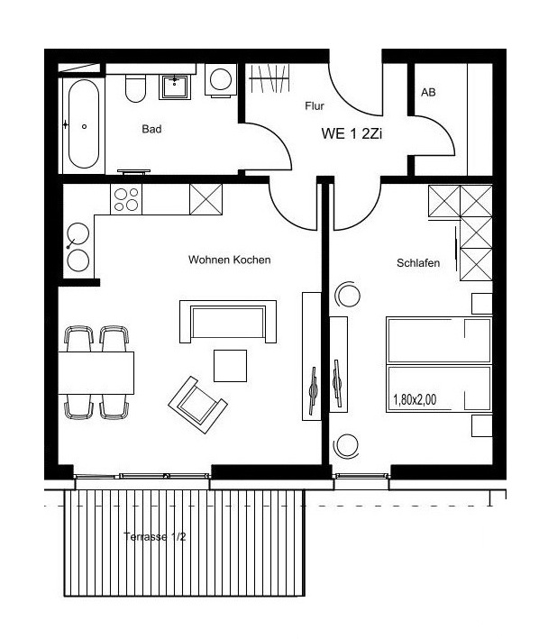
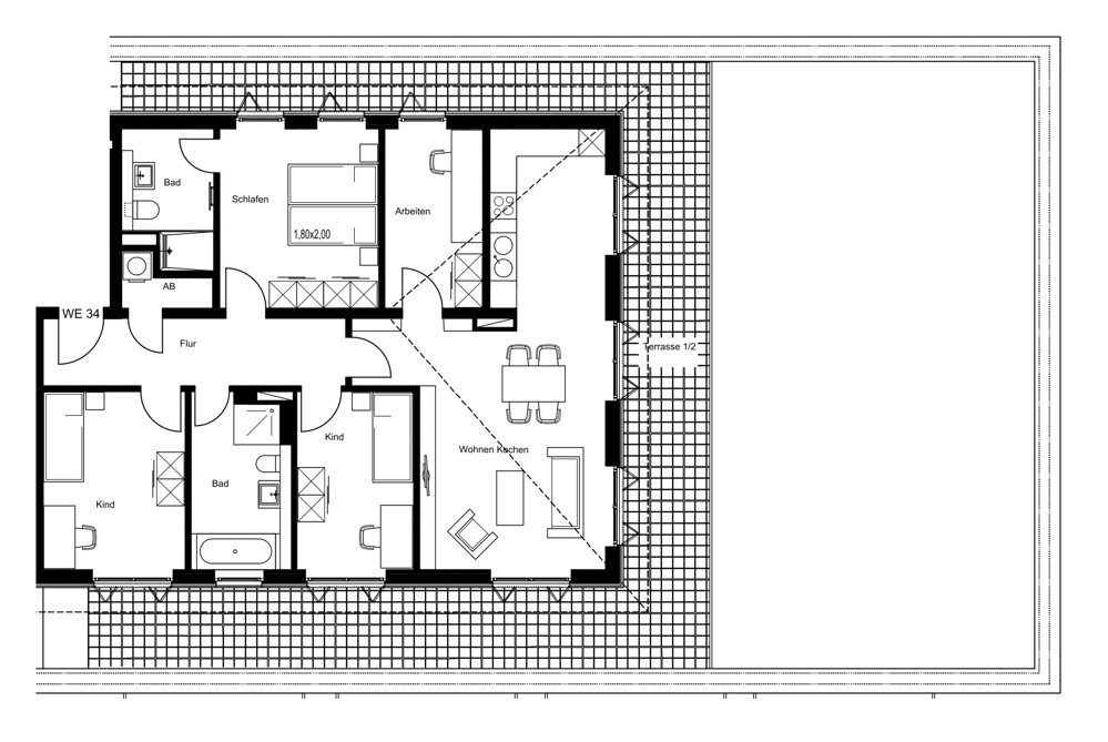
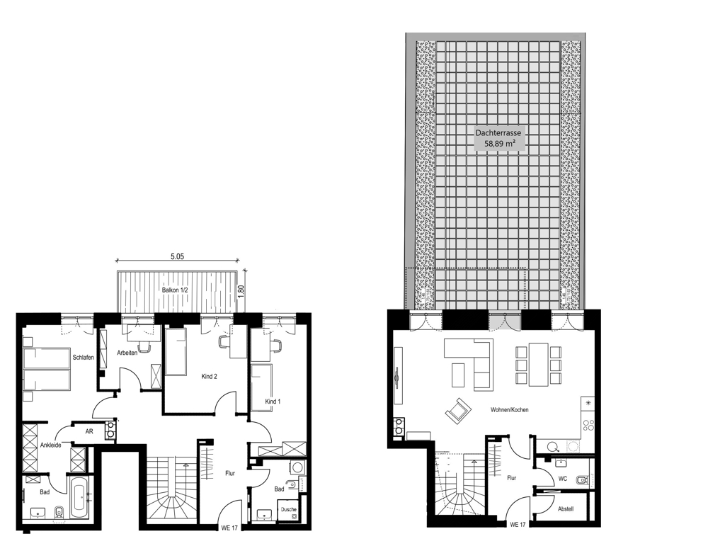
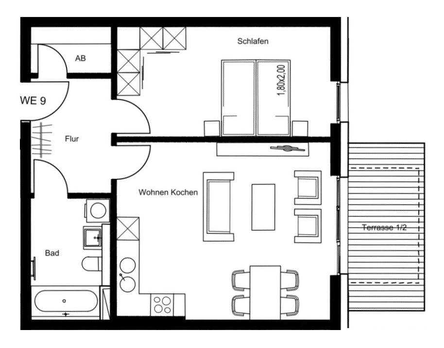
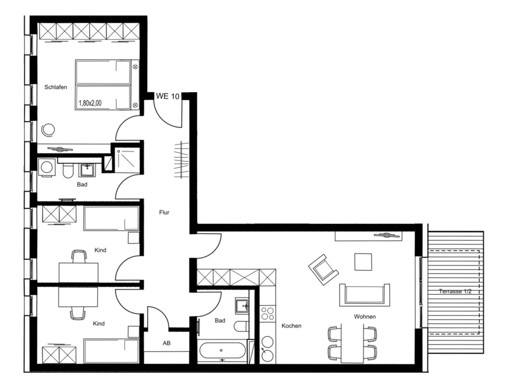
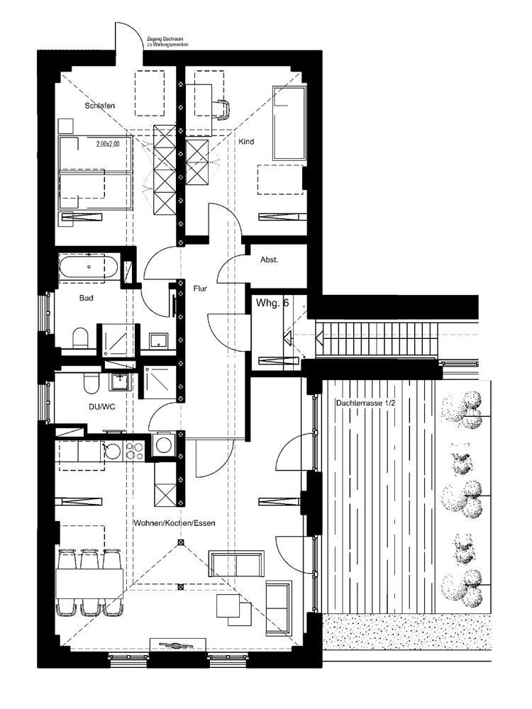
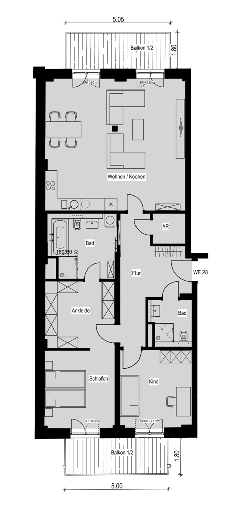
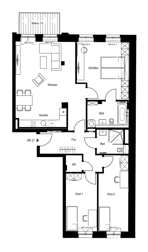
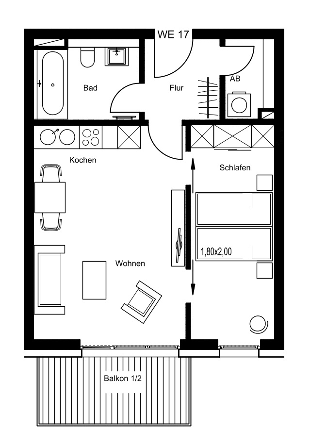
Das vielfältige Wohnungsangebot reicht von kompakten 1,5-Zimmer-Apartments bis hin zu großzügigen 5-Zimmer-Wohnungen mit Wohnflächen zwischen ca. 28 und 164 m² – ideal für Singles, Paare und Familien gleichermaßen.
Die Wohnungen überzeugen durch lichtdurchflutete Räume, offene Grundrisse und eine stilvolle Ausstattung. Ein Großteil der Einheiten verfügt über mindestens einen Balkon, eine Loggia oder (Dach-)Terrasse – perfekt zum Entspannen mit Blick ins Grüne oder aufs Wasser. Offene Küchen schaffen ein großzügiges Wohngefühl, während durchdachte Grundrisse Raum für individuelle Wohnideen bieten.
Hochwertige Badezimmer mit großformatigen Designfliesen, eleganten Armaturen, Badewannen oder bodengleichen Duschen setzen stilvolle Akzente. Handtuchheizkörper, Waschtischunterschränke und weitere Komfortdetails unterstreichen den gehobenen Anspruch. In allen Wohnräumen sorgt eine individuell regulierbare Fußbodenheizung für angenehmes Wohnklima. Edles Echtholzparkett in Eichenoptik verleiht den Wohnungen eine warme, einladende Atmosphäre.
Für Fahrzeuge stehen Stellplätze in der angrenzenden Tiefgarage sowie im Freien zur Verfügung. Die Kombination aus denkmalgeschützter Bausubstanz, moderner Haustechnik (Gas-Brennwerttherme kombiniert mit Luft-Wärmepumpe) und naturnaher Lage bietet Wohnqualität auf hohem Niveau. Das Energiekonzept setzt sich aus 35 % Gas-Brennwerttechnik und 65 % Luft-Wärmepumpe zusammen.
Dank der Nähe zum Bahnhof Schkeuditz mit direkter S-Bahn-Anbindung sowie zur Autobahn ist die Verbindung nach Leipzig und ins Umland optimal. Der angrenzende Auenwald lädt zum Spazierengehen, Radfahren und Erholen ein – ein ideales Zuhause für alle, die urbanen Komfort mit naturnahem Wohnen verbinden möchten.









